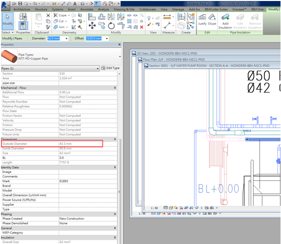
Hello all, i am a newbie in dynamo. First thing i want to do is to use dynamo to get the bottom level of pipe. However,When i try to call out the Outside Diameter from Revit to dynamo, this parameter value have some random number that I have no idea where these numbers come from. Can anybody tell me what am i missed at the beginning?I just want the value from Revit can be called into dynamo. Thanks for any help.
Hi Daniel,
Try This,

Thank you so much KULKUL.
It has been successfully call into Dynamo.
But when i try to calculate these two parameter, all results are “null”.
Are there anything wrong with the core block and these two parameter value?

Thanks again KULKUL,Really appreciate for your help. It seems like there is one last step to go. After the calculation , when i try to put the result into "BL"share parameter, but it occurred some error again. I have attempted many way to get through it ,however, i can’t find the way out…
“BL” probably expects a string. Try converting the numbers to strings and see if it works
Below is an alternate solution to your original problem…
And also noticed that your using parameter name as “BL” Remove arc second just type BL in string.

@VIKRAM, Thanks for the alternative solution. I can’t find “pipes” at “categories” nude. Am i missing something at the first place? @KULKUL, Thanks again for the advice. I have tried with and without “”, but i also get the same error res
Hi Daniel
Maybe your BL parameter is set as Type parameter. If it’s the case try switching it to Instance parameter.
Hi, First question: what is the error?
Please printscreen setParameterByName node (unwind little ‘cloud’ above it). Your BL parameter is probably not a ‘number’ storage.


